検索詳細ページ
吉野町 新築戸建 up
こちらの物件には現在申込みが入ってます。詳細についてはお問い合わせください。
1号棟/駐車4台可の平屋建/南向き/小屋裏収納付き
- 価格:
- お申込中
| 所在地 | 鹿児島市 吉野町 | ||
|---|---|---|---|
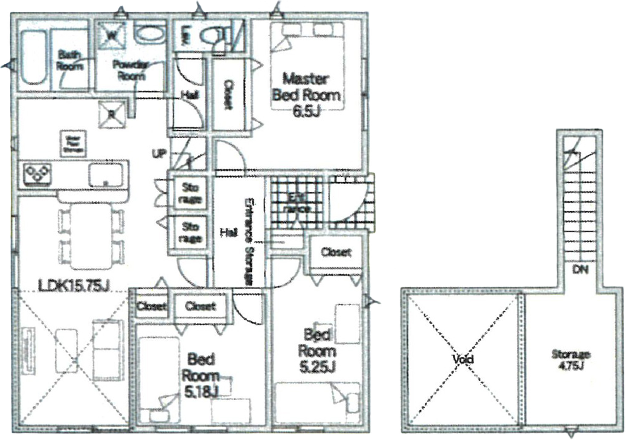
| 間取り | 3LDK+小屋裏収納 | ||
| 土地面積 | 203.46m²(約61.54坪) | 建物面積 | 77.96m²(約23.58坪) |
| 交通 | <南国バス>葛浦谷バス停 徒歩7分 | ||
|---|---|---|---|
| 築年数 | 2025年3月(築9ヶ月) | 物件種別 | 新築戸建 |
| 建物構造 | 木造、1階建 | 駐車場 | 有 4台 |
| 学校区 | 吉野東小 (1330m) / 吉野東中 (1330m) | 接道状況 | 公道 片面 南側/約6m |
| 都市計画 | 市街化区域 | 用途地域 | 第1種低層住居専用地域 |
| 建ぺい率 | 40% | 容積率 | 60% |
| こだわり | |||
| 取引形態 | 仲介 | 物件番号 | H110093D |
| 情報提供日 | 2025年12月16日 | 次回更新予定日 | 情報提供日より2週間以内に更新 |
備考
【間取り】1F:LDK15.7帖,洋6.5帖,洋5.25帖,洋5.18帖,小屋裏収納4.75帖,洗面所,浴室,トイレ
◎南向きで陽当たり良好。周辺は一般住宅が立ち並ぶ閑静な住宅街です。
◎車4台駐車可能です。車が複数台必要な方やお客様用駐車場を確保しておきたい方にもおすすめ。
◎空間を有効活用した小屋裏収納あり。各居室にも収納があり、家族の荷物をすっきり収納可能です。
【周辺環境】 令和7年5月20日現在
■タイヨー 花棚店/約1100m(車:5分)
■ローソン 吉野花棚店/約1100m(車:4分)
■吉野東小学校/約1330m(車:5分)
■吉野東中学校/約1330m(車:5分)
■保育園うさぎ/約500m
■白菊保育園 よしの杜/約700m
■鹿児島菖蒲谷郵便局/約600m
◎南向きで陽当たり良好。周辺は一般住宅が立ち並ぶ閑静な住宅街です。
◎車4台駐車可能です。車が複数台必要な方やお客様用駐車場を確保しておきたい方にもおすすめ。
◎空間を有効活用した小屋裏収納あり。各居室にも収納があり、家族の荷物をすっきり収納可能です。
【周辺環境】 令和7年5月20日現在
■タイヨー 花棚店/約1100m(車:5分)
■ローソン 吉野花棚店/約1100m(車:4分)
■吉野東小学校/約1330m(車:5分)
■吉野東中学校/約1330m(車:5分)
■保育園うさぎ/約500m
■白菊保育園 よしの杜/約700m
■鹿児島菖蒲谷郵便局/約600m
- お取扱店舗
-
MBC不動産伊敷店
鹿児島市伊敷台5丁目9番6号
TEL:099-220-3333
他にもこんな物件が!





































